VOTRE PARTENAIRE
EN FORMATION
Enseignant depuis 1989
Formation en classe aussi disponible
››› www.formacad.ca

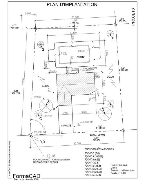
Pré requis pour
effectuer le projet 6: avoir effectué les cours 1 et 6
Télécharger le fichier
pour vous pratiquer en même temps que le vidéo.
| Dessin AutoCAD
Projet 6 |
|
|
Vous devez donner au nom de votre dessin, la syntaxe suivante: PR6-votre courriel@domaine.com (Le même courriel pour accéder au site autocad-cours.ca) Déplacer conformément le dessin selon le point X,Y. Allouer une période de 24 heures pour recevoir votre corrigé en JPG Exemple du nom de fichier :
PR6-christian_guida@hotmail.com pr6-jean.lemieux@yahoo.fr pr6-caroline-tremblay@domaine.com |